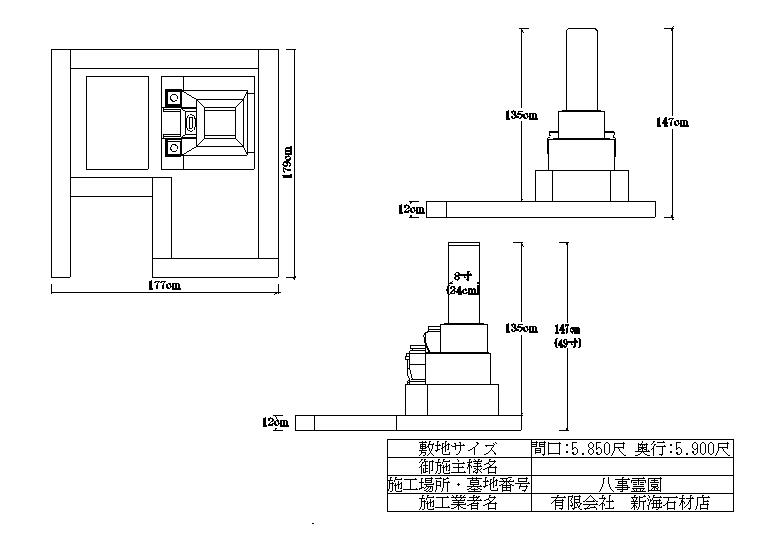
八事霊園にて新規工事事例

2019/03/28

八事霊園にて新規工事事例

 


  • 新規墓石事例
  • リフォーム・修繕事例
  • 撤去解体事例
  • 石材店のブログ

プロフィール

face 新海雅人
1981 3.11 名古屋市出身
2001年入社
現場における墓石工事から商談・お客様の対応まで幅広くお応えいたします。
墓石工事のプロとしてお墓を建ててから後々に後悔をしないお墓づくりの提案やサービスを心がけています。

有限会社新海石材店

お電話でのご来店予約・お問合せはこちら。TEL:0120280082 受付時間:9:00~17:00 月曜定休

八事本店
〒466-0834
愛知県名古屋市昭和区広路町北石坂102-32
TEL 052-832-2219
FAX 052-833-4964

会社概要はこちら
メニュー
  • 受付時間:9:00~17:00 月曜定休 フリーダイヤル0120-280-082
  • 無料お見積り/お問合せ
  • LINEで友達追加してお問い合わせ
このページのトップへ